The Grand Tour
A wealth of historic architecture lines The Bank, the road that reaches up towards the castle. Blagraves is found roughly halfway up, its sandstone frontage punctuated by a compilation of period windows that include a full-height 17th-century bay. Carved minstrel figures, added in the 20th century but sympathetic to the building’s earlier profile, adorn its front aspect.
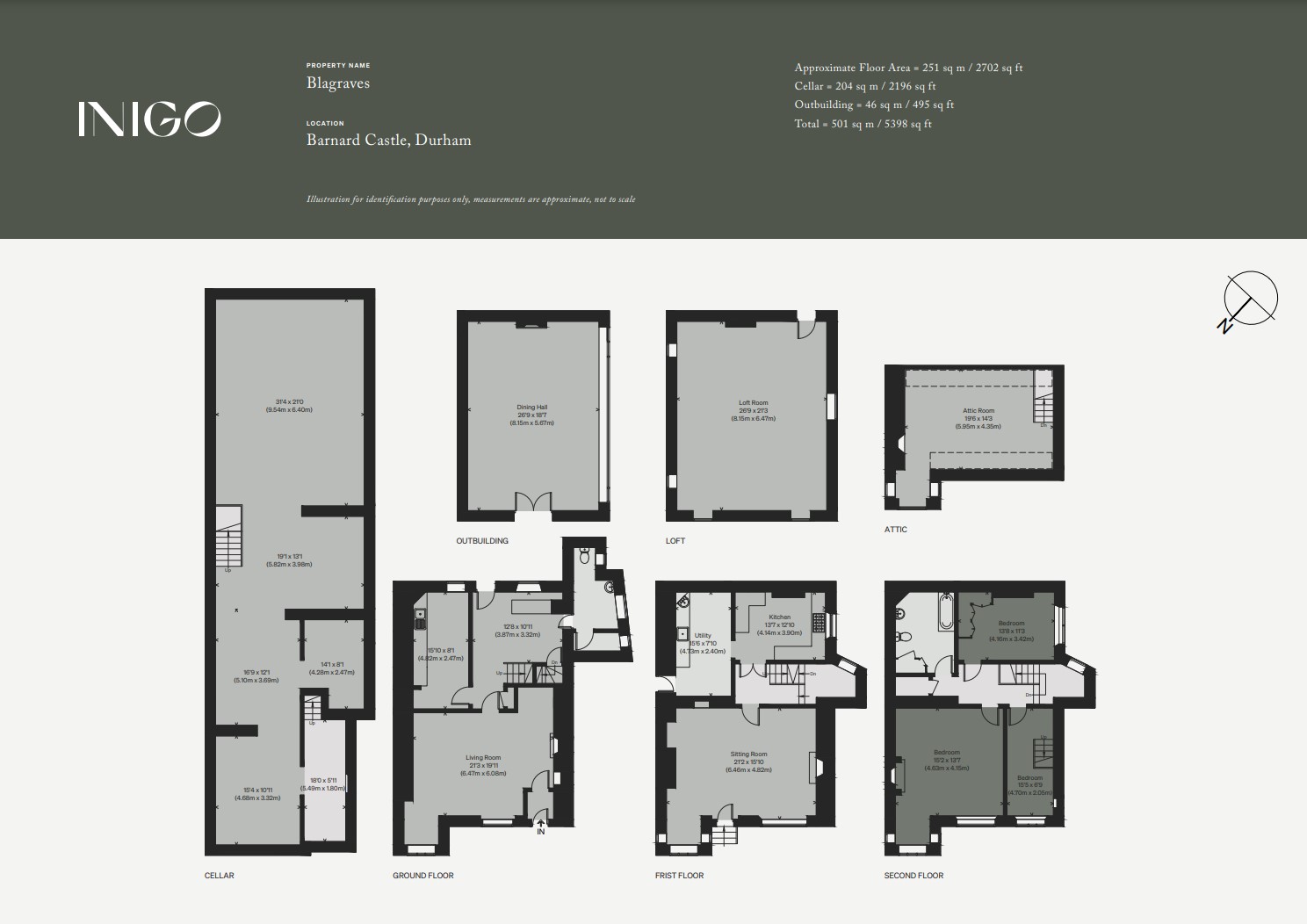
There are four separate points of entry to the house. The ground-floor door opens to a space previously used as an antiques shop, which, befitting its use, brims with period features. Access to the house’s spacious cellar is also granted via this level.
Particularly spectacular is the larger dining room, located in the part of the building that sits at the edge of the garden. Exceptionally well-proportioned, the room retains the grandeur of its Victorian origins and is lit by a series of high-level glazing. Its red-painted walls emphasise the warm tones of wooden panelling and storage that runs along one side. Perhaps most arresting, however, is the stone fireplace surround at the far end that dates to 19th century. The room above this dining room is currently awaiting planning approval to create a studio annexe. Links to planning documents can be found
here.An 18th-century staircase at the front of the house ascends to the first floor; a separate entrance up a short flight of steps also grants access the main residential part of the building from the street. This opens directly to the atmospheric sitting room, which is framed by original timber beams and impressive 17th-century stucco decoration of a scrolled strap work cross, where the house’s Blagraves family engraving can be seen.
The room is orientated towards an impressive stone fireplace with stopped moulding to jambs and an arched lintel. An 18th-century cupboard is fitted into one of the alcoves, its glass-fronted doors providing plenty of display space for books or ornaments. There is additional shelving within an alcove on the opposite navy blue-painted wall, a colour that complements the
Mind the Gap paper that wraps the remainder of the room.
On the other side of the landing is the kitchen, which takes a comparatively light-toned scheme of muted sage green and off-white. A range is positioned beneath a sliding sash window, and there is a counter above open cupboards. The furniture in this room is freestanding, making it wonderfully versatile. What was once a fireplace with a wooden lintel sits here, now used as a handy storage nook. A dining table is arranged central to the room, making for particularly atmospheric weeknight suppers. There is an adjoining utility room/boot room that grants convenient access to the Broadgate, a pedestrian lane outside.
The second floor of the main part of the house is divided between three bedrooms and a generous family bathroom. Adopting a soothing blue scheme, the main bedroom is particularly well-sized with a separate area currently used as a study. A large fireplace sits centrally, with a sublime, black-painted carved surround and original Delft tiles. An intricate Mind the Gap paper lines the walls, echoing the patterns found in ceiling and wall mouldings. A trio of 15th-century leaded windows draw light across a well-placed seat beneath.
Of the further two bedrooms, one has a wonderfully atmospheric sloping ceiling and exposed beams. All of the rooms are served by a pretty bluish-green bathroom complete with a bath.
The Great Outdoors
An enchanting courtyard garden sits central to the house’s distinct components, with plenty of room for outdoor dining. Something of a sun-trap, it has a brilliantly Mediterranean feel. Timeworn flags run underfoot and a stone wall and a tall hedge runs along the house’s perimeter. There is plenty of scope for further planting here, although the current owners have lovingly planted and tended to a mature olive tree, along with a selection of shrubs and potted plants.
Uniquely, there is a secret stone staircase within the wall that runs from here to Broadgate lane outside.
Out and About
Barnard Castle was named after its 12th century founder, Bernard de Balliol. The town was developed by the Beauchamp family before passing to Richard III. Its titular castle was inherited by the King through his marriage to Anne Neville; it fell into ruination after his death, although its now Grade I-listed ruins and Grade II-listed former chapel are today managed by English Heritage and are open to the public.
The town is also home to the Bowes Museum, which opened in 1882 and continues to hold an impressive collection of art, ceramics, textiles and a treasured silver swan automaton among other treasures. Admission is free to Egglestone Abbey, a stunning cluster of ruins that date back to the 13th-century; it can be reached in just over five minutes by car, or 40 minutes via a walk that passes the River Tees.
Barnard Castle lies just outside of both the North Pennines and the Yorkshire Dales Areas of Outstanding Natural Beauty, and so is within easy reach of exceptional opportunities for walking, cycling, and fishing. Teesdale Way is close by and offers a picturesque walking route along the River Tees, taking in the spectacular High Force waterfall, one of the highest in England. For horse riding enthusiasts, several local stables offer guided treks through the rolling hills and lush valleys of the area.
There are plenty of places to eat and to shop both in Barnard Castle and its handful of delightful neighbouring time. The Smithy at Runa Farm (a charmingly rustic hotel) is in the centre of the town and serves food with a field-to-fork focus. There are several coffee shops and cafes too, including RISE bakehouse, Clarendon’s and Number 15.
Cross Lanes is a local farm shop that sells high-quality fare as well as having its own on-site restaurant. As far as pubs go, the
Three Horseshoes and the
Old Well Inn are popular local choices.
Eggleston, a quaint village close to Barnard Castle, is known for its traditional stone houses, a charming village green, and the popular Eggleston Hall Gardens, a hidden gem with beautifully landscaped gardens and a nursery.
Barnard Castle is home to a handful of excellent state-run schools, including Montalbo Nursery and Primary School and Teesdale School and Sixth Form. The private Barnard Castle School offers prep-aged education as well as secondary and sixth form.
Mainline train services are accessible from Darlington, just a short drive away, with connections to major cities including London and Edinburgh. Road connections are excellent too; Durham can be reached in around 45 minutes, while Newcastle and Middlesborough can be reached in approximately hour and 15 minutes and 50 minutes respectively.
Council Tax Band: Currently enjoys 100% small business rates relief